- Brew City Realtors >
- Properties >
- W5706 Trackside Rd, Plymouth, Wisconsin 53073
Property Description
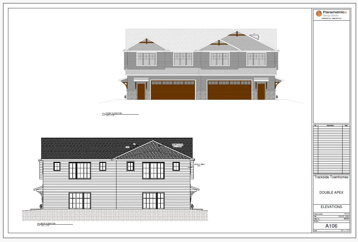
Trackside Townhomes offers a unique opportunity to build a custom garage and living space directly across from Road America. Unit 18 is available, and construction of the building shell will begin once both condo sides are reserved. This blank-slate shell provides over 3,100 sq ft of potential, including a 1,680 sq ft oversized garage ideal for vehicles, trailers, or toys. Purchase price includes the shell only. All interior finishes and upper-level build-out are additional costs with the builder of your choice. Once construction starts, the shell is estimated to be completed in 4-6 months. Buyers receive a free design consultation to help plan their custom layout. Enjoy low-maintenance condo living just minutes from downtown Elkhart Lake, Quit Qui Oc Golf Club, and the lake.
Features
: Slab, None
: Municipal Sewer
Appliances
: None
Address Map
US
WI
Sheboygan
Plymouth
53073
Trackside
W5706
Rd
W88° 1' 4.6''
N43° 48' 14.9''
Residential
Hwy 67, North of Plymouth, to Schwaller Drive, North to Dutchess Court, East to Property (Dutchess Ct turns into Trackside Rd)
Neighborhood
Riverview
Plymouth
Plymouth Joint
Additional Information
2025-12-09
: Private Shared Well
Common Green Space
: Stone, Fiber Cement, Low Maintenance Trim
6
: One
Pleasant View Realty, LLC
Nicole Kapellen
$0
$0
Financial
344.23
255
: Lawn Maintenance, Snow Removal, Common Area Maint
1
Listing Information
88601
625032
Pending
2026-04-13T20:50:07Z
MetroMLS
2026-04-13T20:49:47Z
W5706 Trackside Rd, Plymouth, Wisconsin 53073
W5706 Trackside Rd, Plymouth, Wisconsin 53073
$330,000
Listing ID #1914877
Basic Details
Property Type : Residential
Listing Type : For Sale
Listing ID : 1914877
Price : $330,000
Rooms : 3
Status : Pending
Property Sub Type : Condominium
Agent info
Brew City Realtors
Contact Agent